Loading...
Hamilton May Logo Hamilton May

Penthouse z tarasem 47 m2 oraz dwoma balkonami na Zabłociu

Hamilton May prezentuje wyjątkowy penthouse na sprzedaż w nowoczesnym budynku z 2021 roku, położony na ostatnim piętrze. Wyjątkowości nadaje obszerny taras o powierzchni 47 m2 oraz dwa balkony o łącznej powierzchni 18 m2, oferujące spektakularne widoki na Kraków.

Opis nieruchomości

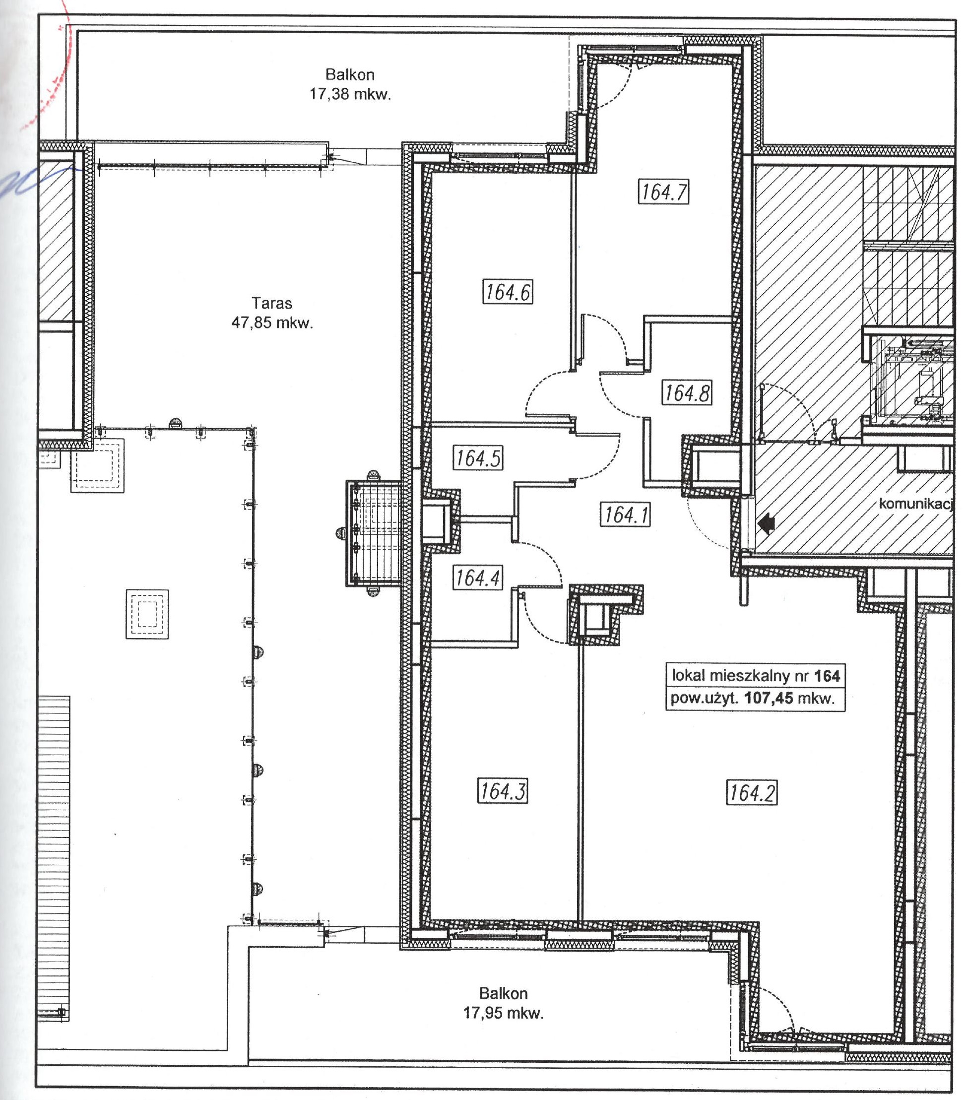
Penthouse o powierzchni 107,45 m2 składa się z przestronnego salonu z aneksem kuchennym oraz trzech oddzielnych, nieprzechodnich sypialni. Apartament posiada dwie łazienki i jest w stanie deweloperskim, co pozwala na indywidualną aranżację wnętrz według własnej wizji przyszłego właściciela.

  • Wyjątkowy taras o powierzchni 47 m2 z panoramicznym widokiem
  • Dwa balkony o łącznej powierzchni 18 m2, zapewniające dodatkową przestrzeń na świeżym powietrzu
  • Trzy oddzielne sypialnie gwarantujące prywatność
  • Salon połączony z aneksem kuchennym – otwarta i funkcjonalna przestrzeń
  • Dwie łazienki dla wygody mieszkańców i gości
  • Nowoczesny stan deweloperski, gotowy do indywidualnej aranżacji

Budynek

Budowa ukończona w 2021 roku, reprezentująca nowoczesną architekturę Podgórza, z windą i garażem podziemnym. Budynek wyposażony jest w klimatyzację oraz instalacje najwyższej jakości, zapewniając komfort i wygodę mieszkańcom. Elewacja budynku łączy cegłę z nowoczesnymi metalowymi panelami,

Kompleks budynków Atal Residence to jedna z najnowszych inwestycji w dzielnicy Zabłocie. Okolice dawnej fabryki Miraculum, dzięki staraniom projektantów, zamieniły się w prestiżowe osiedle mieszkaniowe. Nowoczesna architektura, łącząca w sobie postindustrialną i estetyczną stylistykę, idealnie wkomponowała się w otoczenie dzielnicy Zabłocie



Lokalizacja


Zabłocie to jedna z najmodniejszych i najszybciej rozwijających się dzielnic Krakowa zlokalizowana w bliskim sąsiedztwie Bulwarów Wiślanych. W pobliżu znajdują się min. Park Stacja Wisła, liczne restauracje, sklepy, piekarnie, przedszkole, klub fitness, trasy spacerowe i ścieżki rowerowe wzdłuż Wisły.

Doskonała komunikacja– bliskość przystanków tramwajowych, autobusowych oraz stacji kolejowej. Okolica umożliwia łatwy dostęp do historycznego centrum Krakowa oraz relaks nad rzeką Wisłą.

Koszty

Cena 3 150 000 PLN zawiera komórkę lokatorską + opcjonalnie dwa miejsca w parkingu podziemnym (300 000 PLN )

Zainteresowanych zapraszamy do kontaktu z Hamilton May w celu poznania szczegółów oferty i umówienia się na prezentację wyjątkowego penthouse'u.

Szczegóły nieruchomości

Ref: 22439
Miasto
Ulica
Dzielnica
Inwestycja
Powierzchnia
107 m2
Sypialnie
3
Łazienki
2
Od centrum
2km
Piętro
6
Czynsz
1 200 PLN
Niedawna aktualizacja
04-11-2025
Klimatyzacja
Balkon
Telewizja kablowa
Internet
Winda
Schowek
Parking prywatny

Koszty

Ref: 22439
Cena
3 150 000 PLN
Cena/m2
29 316 PLN

Cena 3 150 000 PLN zawiera komórkę lokatorską + opcjonalnie dwa miejsca w parkingu podziemnym (300 000 PLN )

Hamilton May pobiera opłatę za sprzedaż tej nieruchomości. Opłata pobierana jest po przeprowadzeniu transakcji, gdy podpisana zostaje umowa sprzedaży.

Zainteresowała Cię ta nieruchomość?
Umów się na oglądanie

Twoje dane przetwarzamy zgodnie z naszą Polityką prywatności

Plan nieruchomości

Penthouse z tarasem 47 m2 oraz dwoma balkonami na Zabłociu - plan

Przewodnik po dzielnicy Zabłocie

Zabłocie - nowoczesne postindustrialne miasto

Ambitny projekt mieszkalny, zorganizowany wokół słynnej fabryki Schindlera oraz znakomitego muzeum sztuki nowoczesnej - na pofabrycznych przestrzeniach przemysłowej dzielnicy.

Ambitny projekt mieszkalny, zorganizowany wokół słynnej fabryki Schindlera oraz znakomitego muzeum sztuki nowoczesnej - na pofabrycznych przestrzeniach przemysłowej dzielnicy.

ATAL Residence

Development
Development

Inwestycja Atal Residence to nowa inwestycja składająca się z kilku etapów. Pierwsze dwa etapy to w głównej mierze część mieszkalna z lokalami komercyjnymi na parterowych kondygnacjach. Budynki powstały na terenie dawnej fabryki Miraculum, a dzięki swojej eleganckiej i nowoczesnej architekturze idealnie wpisują się w charakter dzielnicy. Projektanci uwzględnili ró...

Może Cię również zainteresować:

Zaakceptuj ciasteczka

Dziękujemy za odwiedzenie naszej strony. Państwa prywatność ma dla nas ogromne znaczenie, a bezpieczeństwo danych to priorytet. Korzystamy z plików cookies, które pomagają nam dostosować treść do indywidualnych preferencji oraz dostarczać jeszcze wyższą jakość usług. Prosimy o wyrażenie zgody na korzystanie z plików cookies i zapoznanie się z polityką prywatności.