Loading...
22471 Branded Map
Na wyłączność
Ref:   22471

Zwierzyniec, Tadeusza Kościuszki

Kraków
2 490 000 PLN Szczegóły ceny
73 m2
1
Hamilton May Logo Hamilton May

Apartament premium w inwestycji Kościuszki 22

Hamilton May prezentuje ekskluzywny penthouse o powierzchni 76 m2 zlokalizowany na pierwszym piętrze nowoczesnego budynku w prestiżowej dzielnicy Zwierzyniec w Krakowie. Apartament wyróżnia wysoki standard wykończenia oraz możliwość wydzielenia drugiej sypialni.

Opis nieruchomości

Przestronne wnętrze apartamentu obejmuje duży salon połączony z kuchnią, z kuchnią wyposażoną w nowoczesne sprzęty AGD, w tym indukcyjną płytę oraz zmywarkę. Wnętrza wykończone zostały wysokiej jakości materiałami, a w całym mieszkaniu działa system klimatyzacji. Łazienka wyposażona w m.in. w pralkę i suszarkę. Apartament oferuje także wyjście na balkon.

  • Duży, jasny salon z designerskim oświetleniem
  • Nowoczesna kuchnia z indukcyjnym kuchenką i sprzętami AGD
  • Klimatyzacja zapewniająca komfort przez cały rok
  • Możliwość wydzielenia drugiej sypialni dopasowanej do potrzeb
  • Balkon z widokiem na Wawel

Budynek

Najważniejsze informację dotyczące budynku i części wspólnych: całodobowa recepcja z ochroną; strefa fitness dostępna dla mieszkańców; ogólnodostępna stacja do szybkiego ładowania samochodów elektrycznych; ogólnodostępna stacja do sprzątania samochodu w garażu podziemnym; nawiewniki antysmogowe i antyalergiczne; stacja uzdatniania wody w budynku; zastosowanie rur niskoszumowych w pionach kanalizacyjnych; stacja meteorologiczna.

Lokalizacja

Prezentowane mieszkanie przy ulicy Kościuszki 22 to idealne miejsce dla osób, które szukają wyjątkowego i niepowtarzalnego mieszkania zlokalizowanego w ścisłym centrum starego miasta z niesamowitym widokiem. Inwestycja w której zlokalizowane jest prezentowane mieszkanie oddalona jest zaledwie kilkaset metrów od Wzgórza Wawelskiego. Warto podkreślić że kamienica (wybudowana od zera) położona jest tuż nad Wisłą w bardzo bliskim sąsiedztwie największych zielonych terenów Krakowa takich jak bulwary wiślane, błonia, las wolski. Ulica Kościuszki przeszła generalany remont.

Koszty

Cena 2 490 000 PLN + miejsce w parkingu podziemnym (180 000 PLN ) + komórka lokatorska (50 000 PLN )

Zainteresowanych tym wyjątkowym penthouse zapraszamy do kontaktu z biurem Hamilton May w celu umówienia prezentacji.

Szczegóły nieruchomości

Ref: 22471
Miasto
Dzielnica
Powierzchnia
73 m2
Sypialnie
1
Łazienki
2
Od centrum
1km
Piętro
1
Czynsz
1 000 PLN
Liczba pięter
5
Niedawna aktualizacja
23-02-2026
Klimatyzacja
Balkon
Winda
Schowek
Parking prywatny

Koszty

Ref: 22471
Cena
2 490 000 PLN
Cena/m2
34 156 PLN

Cena 2 490 000 PLN + miejsce w parkingu podziemnym (180 000 PLN ) + komórka lokatorska (50 000 PLN )

Hamilton May pobiera opłatę za sprzedaż tej nieruchomości. Opłata pobierana jest po przeprowadzeniu transakcji, gdy podpisana zostaje umowa sprzedaży.

Zainteresowała Cię ta nieruchomość?
Umów się na oglądanie

Twoje dane przetwarzamy zgodnie z naszą Polityką prywatności

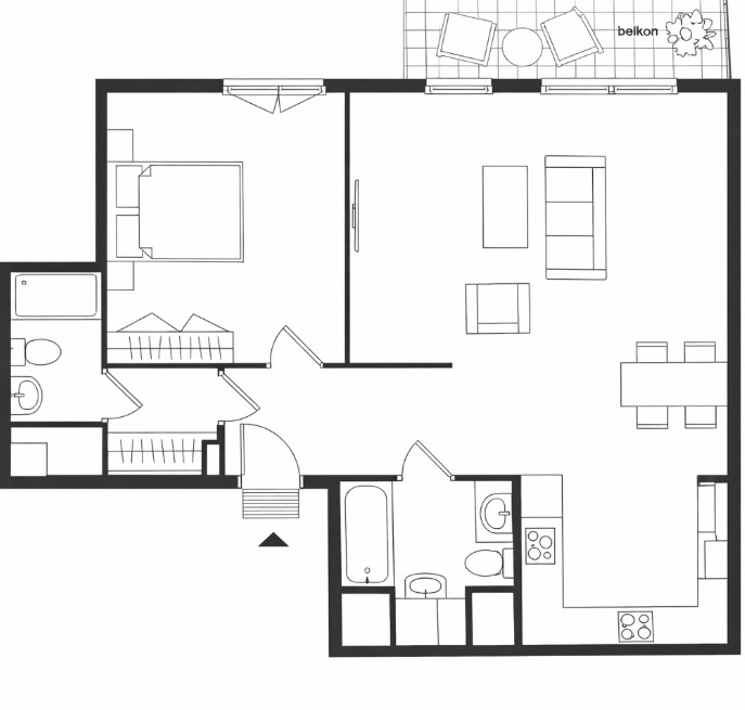
Plan nieruchomości

Apartament premium w inwestycji Kościuszki 22 - plan

Może Cię również zainteresować:

Zaakceptuj ciasteczka

Dziękujemy za odwiedzenie naszej strony. Państwa prywatność ma dla nas ogromne znaczenie, a bezpieczeństwo danych to priorytet. Korzystamy z plików cookies, które pomagają nam dostosować treść do indywidualnych preferencji oraz dostarczać jeszcze wyższą jakość usług. Prosimy o wyrażenie zgody na korzystanie z plików cookies i zapoznanie się z polityką prywatności.