Loading...
Hamilton May Logo Hamilton May

Jasne i ustawne 4 pokoje | Balkon | Garaż | Zieleń wokół

DNI OTWARTE 22 i 23 Listopada

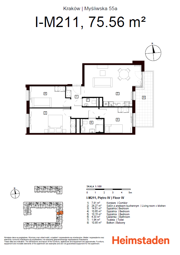
Na sprzedaż stylowe, w pełni umeblowane mieszkanie o powierzchni 75,56 m², położone na 4 piętrze w nowoczesnym budynku, przy ul. Myśliwskiej 55A w zielonej części Płaszowa. To idealna propozycja dla osób szukających komfortu, przestrzeni i dobrej lokalizacji blisko centrum.

W naszej ofercie znajdują się różnorodne mieszkania w ramach tej inwestycji – zapraszamy do kontaktu w celu poznania szczegółów.



Opis nieruchomości

W skład mieszkania wchodzi:  

  • przestronny salon z aneksem kuchennym i wyjściem na duży balkon, 
  • hol wejściowy z zabudowaną szafą 
  • główna sypialnia z dużą szafą,  
  • dwa dodatkowe pokoje 
  • łazienka z wanną, 
  • dodatkowa toaleta. 

Mieszkanie jest gotowe do zamieszkania – w pełni umeblowane a także wyposażone w wysokiej jakości sprzęty Samsung i armatura Grohe. Ekspozycja północ-południe zapewnia dobre doświetlenie wnętrz i naturalną wentylację.

Budynek

Osiedle Myśliwska wyróżnia się doskonałą lokalizacją w sercu Płaszowa, umożliwiającą szybki i wygodny dojazd do wszystkich części miasta dzięki pobliskiej pętli autobusowo-tramwajowej. Otoczone zielenią parków oraz bogatą infrastrukturą miejską, stanowi komfortowe miejsce do życia dla rodzin, młodych par, studentów oraz seniorów. To także idealna przestrzeń do aktywnego spędzania czasu wolnego i relaksu po intensywnym dniu.

W ofercie znajduje się szeroki wybór mieszkań od 1- do 4-pokojowych, każde z balkonem lub ogródkiem.

Lokalizacja

Lokalizacja zapewnia łatwy dostęp do centrum miasta – dojazd zajmuje zaledwie kilkanaście minut. W najbliższym sąsiedztwie znajdują się urokliwe parki, sklepy, szkoły, przedszkola oraz przychodnie, co sprawia, że wszystko jest na wyciągnięcie ręki. Dodatkowo mieszkańcy mogą korzystać z podziemnego garażu oraz komórek lokatorskich, które zwiększają komfort codziennego życia.

Właścicielem nieruchomości jest Heimstaden – wiodąca europejska firma działająca w sektorze nieruchomości mieszkaniowych. Grupa jest obecna w Norwegii, Szwecji, Danii, Finlandii, Wielkiej Brytanii, Niemczech, Holandii, Czechach i Polsce. Heimstaden dysponuje około 161 tys. mieszkań o łącznej wartości około 30 mld euro. Firma koncentruje się na nabywaniu, budowie, sprzedaży i zarządzaniu budynkami w oparciu o najwyższej jakości standardy współpracy z partnerami i klientami.

Hamilton May jest oficjalnym partnerem Heimstaden w zakresie sprzedaży nieruchomości.

Koszty

Cena 1 185 000 PLN + dwa miejsca w parkingu podziemnym (70 000 PLN ) + opcjonalnie komórka lokatorska (20 000 PLN )

LOKAL SPRZEDAWANY JEST BEZ PROWIZJI I BEZ PCC  

Informacje dodatkowe:  

  • powierzchnia: 75,56 m²  
  • piętro: 4 z 5 
  • balkon: ponad 10 m²  
  • ekspozycja: wschód zachód  
  • ogrzewanie i ciepła woda miejskie, 
  • stan prawny: pełna własność z księgą wieczystą,  
  • budynek z 2023 roku z windą, monitoringiem i fotowoltaiką - Certyfikat BREEAM,  
  • możliwość zakupu miejsca postojowego w garażu podziemnym. 

Zainteresowało Cię to mieszkanie? Skontaktuj się z nami i umów na prezentację.

Ogłoszenie nie stanowi oferty w rozumieniu art. 66 Kodeksu cywilnego

https://heimstaden.com/pl/

Szczegóły nieruchomości

Ref: 22349
Miasto
Ulica
Dzielnica
Inwestycja
Powierzchnia
76 m2
Sypialnie
3
Łazienki
1
Od centrum
5km
Piętro
4
Czynsz
750 PLN
Niedawna aktualizacja
04-12-2025
Balkon
Telewizja kablowa
Internet
Winda
Schowek
Parking prywatny

Koszty

Ref: 22349
Cena
1 185 000 PLN
Cena/m2
15 683 PLN

Cena 1 185 000 PLN + dwa miejsca w parkingu podziemnym (70 000 PLN ) + opcjonalnie komórka lokatorska (20 000 PLN )

Zainteresowała Cię ta nieruchomość?
Umów się na oglądanie

Rezerwacja

Ta nieruchomość jest zarezerwowana. Wysyłając zapytanie, prosimy pamiętać, że może zostać w międzyczasie sprzedana.

Twoje dane przetwarzamy zgodnie z naszą Polityką prywatności

Plan nieruchomości

Jasne i ustawne 4 pokoje | Balkon | Garaż | Zieleń wokół - plan

Przewodnik po dzielnicy Podgórze

Podgórze - nowe centrum na drugim brzegu rzeki

Poznaj jedną z najszybciej rozwijających się dzielnic Krakowa: od XIX wiecznych kamienic przy Rynku Podgórskim po nowoczesne biurowe wokół ronda Matecznego.

Poznaj jedną z najszybciej rozwijających się dzielnic Krakowa: od XIX wiecznych kamienic przy Rynku Podgórskim po nowoczesne biurowe wokół ronda Matecznego.

Myśliwska

City: Kraków Street: Myśliwska Region: Podgórze Subregion: Płaszów Level: 5 Status: existing Price on application Rental price from: null Avg. rental price/m2: null
City: Kraków Street: Myśliwska Region: Podgórze Subregion: Płaszów Level: 5 Status: existing Price on application Rental price from: null Avg. rental price/m2: null

Osiedle Myśliwska wyróżnia się doskonałą lokalizacją w sercu Płaszowa, umożliwiającą szybki i wygodny dojazd do wszystkich części miasta dzięki pobliskiej pętli autobusowo-tramwajowej. Otoczone zielenią parków oraz bogatą infrastrukturą miejską, stanowi komfortowe miejsce do życia dla rodzin, młodych par, studentów oraz seniorów. To także idealna przestrzeń do aktywneg...

Może Cię również zainteresować:

Zaakceptuj ciasteczka

Dziękujemy za odwiedzenie naszej strony. Państwa prywatność ma dla nas ogromne znaczenie, a bezpieczeństwo danych to priorytet. Korzystamy z plików cookies, które pomagają nam dostosować treść do indywidualnych preferencji oraz dostarczać jeszcze wyższą jakość usług. Prosimy o wyrażenie zgody na korzystanie z plików cookies i zapoznanie się z polityką prywatności.