Loading...
Hamilton May Logo Hamilton May

3-pokojowe mieszkanie | balkon I Praga-Południe

Z przyjemnością prezentujemy komfortowe trzypokojowe mieszkanie, które łączy w sobie starannie zaprojektowaną przestrzeń, nowoczesne rozwiązania i funkcjonalny układ wnętrz. To idealna propozycja dla osób ceniących wygodę, estetykę oraz wysoką jakość codziennego życia.

BEZ PODATKU PCC do końca stycznia 2026

Opis nieruchomości

Komfortowe i starannie zaprojektowane mieszkanie o powierzchni 65 m2 m², które łączy w sobie funkcjonalny układ oraz wysoką jakość wykończenia.

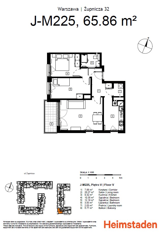
  Układ mieszkania:  

  • przestronny salon z wydzieloną kuchnią, którą można również otworzyć na salon,
  • dwie przytulne, jasne sypialnie
  • łazienka
  • pralnia,
  • pojemny przedpokój z wnęką,
  • balkon o powierzchni ponad 5 m2

Dzięki przemyślanemu rozkładowi wnętrz, mieszkanie zapewnia wygodę codziennego życia oraz intymność wszystkich stref. Duże przeszklenia gwarantują odpowiednie doświetlenie pomieszczeń, a balkon pozwala cieszyć się świeżym powietrzem o każdej porze dnia. Nieruchomość będzie doskonałą propozycją zarówno do zamieszkania, jak i jako inwestycja.

Budynek

Heimstaden Żupnicza to nowoczesna inwestycja mieszkaniowa na Pradze Południe, oferująca funkcjonalne mieszkania 1-5 pokojowe z przestronnymi balkonami, ogródkami lub tarasami. Inwestycja posiada certyfikat BREEAM oraz wyposażona jest w panele fotowoltaiczne, co podkreśla jej proekologiczny i energooszczędny charakter. Inwestycja obejmuje sześciopiętrowy budynek, w którym wszystkie lokale są w pełni umeblowane i gotowe do zamieszkania.

Właścicielem nieruchomości jest Heimstaden – wiodąca europejska firma działająca w sektorze nieruchomości mieszkaniowych. Grupa jest obecna w Norwegii, Szwecji, Danii, Finlandii, Wielkiej Brytanii, Niemczech, Holandii, Czechach i Polsce. Heimstaden dysponuje około 161 tys. mieszkań o łącznej wartości około 30 mld euro. Firma koncentruje się na nabywaniu, budowie, sprzedaży i zarządzaniu budynkami w oparciu o najwyższej jakości standardy współpracy z partnerami i klientami.

Hamilton May jest oficjalnym partnerem Heimstaden w zakresie sprzedaży nieruchomości.

Lokalizacja

Lokalizacja przy ul. Żupniczej, na styku Kamionka i Grochowa, zapewnia doskonałą komunikację dzięki bliskości Dworca Wschodniego, przystanków autobusowych, pobliskiej stacji metra Stadion Narodowy oraz znajdującego się zaledwie o trzy przystanki dalej Ronda Wiatraczna — jednego z kluczowych węzłów komunikacyjnych Warszawy, ułatwiającego szybki dojazd do różnych części miasta, w tym do ścisłego centrum. W otoczeniu znaleźć można urokliwe tereny zielone, jak Park Skaryszewski i Park Obwodu Praga AK, a także rozwiniętą infrastrukturę społeczną – szkoły, przedszkola, sklepy, restauracje oraz galerie handlowe, np. Wileńska i Koneser.

Projekt Heimstaden Żupnicza to nie tylko komfort życia, ale i wyjątkowa historia miejsca. Praga Południe to dzielnica o bogatej, niepowtarzalnej tożsamości — w sąsiedztwie inwestycji znajdują się murale nawiązujące do nieczynnego toru kolarskiego przy Mińskiej oraz legendarnego syfonu z Bazaru Różyckiego, będącego symbolem przedwojennej Warszawy.

Koszty

Cena 1 260 000 PLN + miejsce w parkingu podziemnym (50 000 PLN )

W celu uzyskania dalszych informacji na temat powyższej oferty, zapraszamy do kontaktu z biurem Hamilton May.

Ogłoszenie nie stanowi oferty w rozumieniu art. 66 Kodeksu cywilnego.

https://heimstaden.com/pl/

Szczegóły nieruchomości

Ref: 22604
Miasto
Ulica
Inwestycja
Powierzchnia
66 m2
Sypialnie
2
Łazienki
1
Od centrum
5km
Piętro
5
Czynsz
600 PLN
Niedawna aktualizacja
02-01-2026
Balkon
Internet
Winda
Ochrona/ dozorca
Parking prywatny

Koszty

Ref: 22604
Cena
1 260 000 PLN
Cena/m2
19 131 PLN

Cena 1 260 000 PLN + miejsce w parkingu podziemnym (50 000 PLN )

Zainteresowała Cię ta nieruchomość?
Umów się na oglądanie

Twoje dane przetwarzamy zgodnie z naszą Polityką prywatności

Plan nieruchomości

3-pokojowe mieszkanie | balkon I Praga-Południe - plan

Żupnicza

City: Warszawa Street: Żupnicza Region: Praga-Południe Level: 6 Status: existing Price on application Rental price from: null Avg. rental price/m2: null
City: Warszawa Street: Żupnicza Region: Praga-Południe Level: 6 Status: existing Price on application Rental price from: null Avg. rental price/m2: null

Heimstaden Żupnicza to nowoczesna inwestycja mieszkaniowa na Pradze Południe, oferująca funkcjonalne mieszkania 1-5 pokojowe z przestronnymi balkonami, ogródkami lub tarasami. Inwestycja posiada certyfikat BREEAM oraz wyposażona jest w panele fotowoltaiczne, co podkreśla jej proekologiczny i energooszczędny charakter. Inwestycja obejmuje sześciopiętrowy budynek, w którym wszystkie lok...

Może Cię również zainteresować:

Zaakceptuj ciasteczka

Dziękujemy za odwiedzenie naszej strony. Państwa prywatność ma dla nas ogromne znaczenie, a bezpieczeństwo danych to priorytet. Korzystamy z plików cookies, które pomagają nam dostosować treść do indywidualnych preferencji oraz dostarczać jeszcze wyższą jakość usług. Prosimy o wyrażenie zgody na korzystanie z plików cookies i zapoznanie się z polityką prywatności.