Loading...
Hamilton May Logo Hamilton May

Luksusowy i przestronny apartament w samym centrum Warszawy

Hamilton May ma przyjemność przedstawić luksusowy apartament w prestiżowej rezydencji Apartamenty Grzybowska 4.

Opis nieruchomości

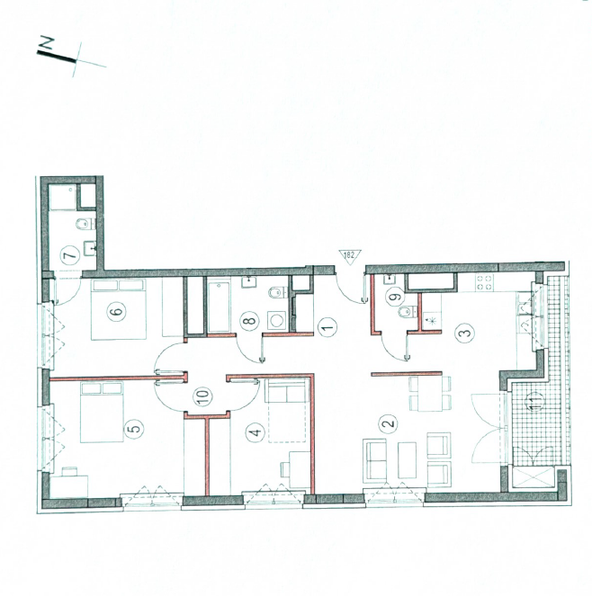
Na powierzchnię 108,2 m2 + loggia 8,3 m2, apartamentu znajduje się: 

  • przestronny i widny salon,
  • loggia
  • kuchnia z jadalnia,
  • sypialnia master z garderobą typu walk in,
  • dwie sypialnie gościnne,
  • druga łazienka z kabiną prysznicową,
  • liczne wbudowane szafy w holu.

Do apartamentu przynależy jedno miejsce w garażu podziemnym oraz loggia o powierzchni 8,3 m2

Budynek

Apartament znajduje się na 10 piętrze 12-piętrowego budynku. Grzybowska 4 to budynek zaprojektowany przez pracownię Hermanowicz Rewski MWH Architekci. Inwestycja jest przykładem nowoczesnej architektury. Budynek o zróżnicowanej wysokości jest otwarty na park Mirowski. Ceramiczne żaluzje dodają lekkości budynkowi, który jest dość masywy. Budynek nocą jest podświetlany. Twórcą inwestycji jest Dom Development.

Lokalizacja

Budynek zlokalizowany jest przy prestiżowej ulicy Grzybowskiej. Inwestycja znajduje się w pobliżu najważniejszych węzłów komunikacyjnych, takich jak Dworzec Centralny oraz metro, a w pobliżu budynku znajdują się przystanki tramwajowe oraz autobusowe. W ciągu kilku minut spacerem można dojść do Pałacu Kultury i Złotych Tarasów.

Koszty

Cena 3 800 000 PLN + opcjonalnie miejsce w parkingu podziemnym (150 000 PLN )

W celu otrzymania dodatkowych informacji dotyczących oferty prosimy o kontakt z biurem Hamilton May.

Szczegóły nieruchomości

Ref: 22124
Miasto
Ulica
Dzielnica
Powierzchnia
108 m2
Sypialnie
3
Łazienki
2
Od centrum
1km
Piętro
10
Czynsz
2 200 PLN
Liczba pięter
12
Data aktualizacji
02-02-2026
Klimatyzacja
Balkon
Internet
Winda
Ochrona/ dozorca
Parking prywatny

Koszty

Ref: 22124
Cena
3 800 000 PLN
Cena/m2
35 120 PLN

Cena 3 800 000 PLN + opcjonalnie miejsce w parkingu podziemnym (150 000 PLN )

Hamilton May pobiera opłatę za sprzedaż tej nieruchomości. Opłata pobierana jest po przeprowadzeniu transakcji, gdy podpisana zostaje umowa sprzedaży.

Zainteresowała Cię ta nieruchomość?
Umów się na oglądanie

Twoje dane przetwarzamy zgodnie z naszą Polityką prywatności

Plan nieruchomości

Luksusowy i przestronny apartament w samym centrum Warszawy - plan

Przewodnik po dzielnicy Śródmieście

Śródmieście - serce stolicy

Śródmieście Warszawy zachwyca wielkomiejską atmosferą: dominują tu szklane wieże, luksusowe apartamentowce i ruchliwe arterie. Śródmieście kryje jednak znacznie więcej atrakcji.

Śródmieście Warszawy zachwyca wielkomiejską atmosferą: dominują tu szklane wieże, luksusowe apartamentowce i ruchliwe arterie. Śródmieście kryje jednak znacznie więcej atrakcji.

Apartamenty Grzybowska 4

City: Warszawa Street: Grzybowska Region: Śródmieście Level: 17 Status: existing Number of units: 287 Price on application Rental price from: nullPLN Avg. rental price/m2: nullPLN
City: Warszawa Street: Grzybowska Region: Śródmieście Level: 17 Status: existing Number of units: 287 Price on application Rental price from: nullPLN Avg. rental price/m2: nullPLN

Hamilton May prezentuje jedną z najciekawszych ofert apartamentowych stolicy Grzybowska 4, położoną w samym centrum biznesowej części miasta. Apartamenty Grzybowska 4 Grzybowska 4 to budynek w kształcie litery U zaprojektowany przez pracownię Hermanowicz Rewski MWH Architekci. Inwestycja jest przykładem nowoczesnej architektury. Budynek o zróżnicowanej ...

Może Cię również zainteresować:

Zaakceptuj ciasteczka

Dziękujemy za odwiedzenie naszej strony. Państwa prywatność ma dla nas ogromne znaczenie, a bezpieczeństwo danych to priorytet. Korzystamy z plików cookies, które pomagają nam dostosować treść do indywidualnych preferencji oraz dostarczać jeszcze wyższą jakość usług. Prosimy o wyrażenie zgody na korzystanie z plików cookies i zapoznanie się z polityką prywatności.