Loading...
Hamilton May Logo Hamilton May

Jasne studio | 32.04 m² | W pobliżu centrum | Unique Tower

[0% PROWIZJI]

SUPER OKAZJA- obniżka ceny aż o 2%.*

*Oferta ograniczona czasowo.

Mamy przyjemność przedstawić Państwu ofertę sprzedaży mieszkania typu studio, położonego na ósmym piętrze budynku. Nowocześnie wykończone, w pobliżu ścisłego centrum Warszawy.

W naszej ofercie znajdują się różne mieszkania w tej inwestycji.

Opis nieruchomości

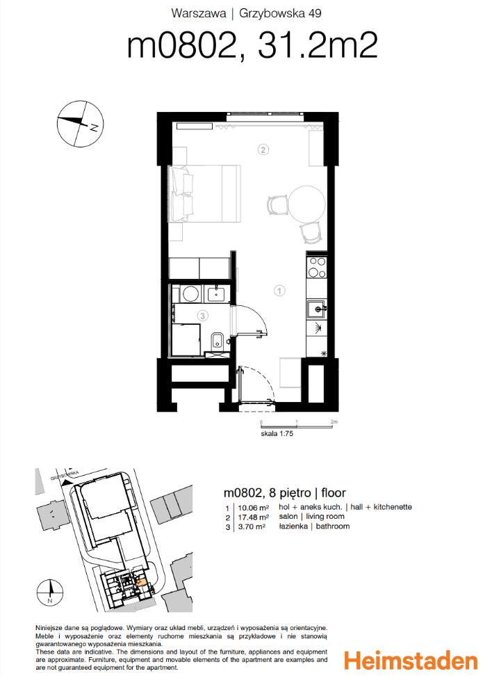
Na sprzedaż nowoczesne mieszkanie studio, o powierzchni 32.04 m2 urządzone z dużą dbałością o detale oraz komfort codziennego użytkowania. Lokal idealnie sprawdzi się zarówno dla singla, pary, jak i jako inwestycja pod wynajem.

Układ mieszkania:    

  • przestronny hall z aneksem kuchennym, w pełni wyposażonym w wysokiej klasy sprzęt AGD (lodówka, piekarnik, płyta indukcyjna, zmywarka),    
  • komfortowy pokój dzienny, z łóżkiem dwuosobowym, pojemną szafą oraz stołem z krzesłami,    
  • łazienka z kabiną prysznicową.

Wykończenie wnętrza utrzymane jest w jasnej kolorystyce, z eleganckimi, naturalnymi akcentami drewnianymi na podłodze oraz czarnymi elementami, które nadają przestrzeni charakteru i stylu. Mieszkanie wyposażone zostało w zabudowane szafy, dzięki czemu zapewnia dużo miejsca do przechowywania i jednocześnie zachowuje poczucie przestronności.

Budynek

Unique Tower to nowoczesna inwestycja mieszkaniowa zlokalizowana w sercu warszawskiej Woli – jednej z najszybciej rozwijających się dzielnic stolicy. W 16-piętrowym budynku znajdują się komfortowe mieszkania jedno, dwu i trzypokojowe, wszystkie klimatyzowane i w pełni umeblowane. Część lokali posiada przestronne balkony z widokiem na panoramę miasta. Przestrzenie wspólne zaprojektowano z myślą o wygodzie i stylu życia mieszkańców – eleganckie lobby z recepcją oraz całodobowe bezpieczeństwo podnoszą komfort codziennego funkcjonowania.

Właścicielem nieruchomości jest Heimstaden – wiodąca europejska firma działająca w sektorze nieruchomości mieszkaniowych. Grupa jest obecna w Norwegii, Szwecji, Danii, Finlandii, Wielkiej Brytanii, Niemczech, Holandii, Czechach i Polsce. Heimstaden dysponuje około 161 tys. mieszkań o łącznej wartości około 30 mld euro. Firma koncentruje się na nabywaniu, budowie, sprzedaży i zarządzaniu budynkami w oparciu o najwyższej jakości standardy współpracy z partnerami i klientami. 

Hamilton May jest oficjalnym partnerem Heimstaden w zakresie sprzedaży nieruchomości.

Lokalizacja

Inwestycja znajduje się w dynamicznie rozwijającej się dzielnicy Wola, która stanowi wizytówkę stolicy i cieszy się rosnącym zainteresowaniem zarówno mieszkańców, jak i inwestorów. To miejsce tętniące życiem, oferujące szeroką gamę możliwości mieszkaniowych, biznesowych i rozrywkowych.

W najbliższym otoczeniu znajdują się liczne kawiarnie, restauracje oraz punkty usługowe, które zaspokoją potrzeby każdego mieszkańca i gościa. Wola to również centrum nowoczesnej architektury i kultury – w pobliżu zlokalizowane są prestiżowe kompleksy biurowe oraz kulturalne, takie jak Browary Warszawskie i Fabryka Norblina, które przyciągają zarówno pracowników, jak i turystów.

Doskonała komunikacja to kolejny atut tej lokalizacji – w zasięgu krótkiego spaceru znajdują się przystanki tramwajowe i autobusowe, a także stacje metra Rondo ONZ oraz Rondo Daszyńskiego, zapewniające szybki i wygodny dostęp do innych dzielnic Warszawy.

Koszty

Cena 940 000 PLN + opcjonalnie miejsce w parkingu podziemnym (150 000 PLN )

W celu uzyskania dalszych informacji na temat powyższej oferty, zapraszamy do kontaktu z biurem Hamilton May.

https://heimstaden.com/pl/

Szczegóły nieruchomości

Ref: 22419
Miasto
Ulica
Dzielnica
Powierzchnia
32 m2
Sypialnie
studio
Łazienki
1
Od centrum
2km
Piętro
8
Czynsz
425 PLN
Liczba pięter
16
Data aktualizacji
09-02-2026
Internet
Winda
Parking prywatny

Koszty

Ref: 22419
Cena
940 000 PLN
Cena/m2
29 338 PLN

Cena 940 000 PLN + opcjonalnie miejsce w parkingu podziemnym (150 000 PLN )

Zainteresowała Cię ta nieruchomość?
Umów się na oglądanie

Twoje dane przetwarzamy zgodnie z naszą Polityką prywatności

Plan nieruchomości

City: Warszawa Street: Grzybowska Region: Wola Subregion: Mirów Distance to centre: 1.6 km Level: 8 Price: 940000 PLN Bedrooms: 0 Bathrooms: 1 Size: 32.04m2 Price/m2: 29338 PLN - plan

Przewodnik po dzielnicy Wola

Wola - nowe centrum Warszawy

Odkryj dzielnicę ultranowoczesnych drapaczy chmur, której rytm wyznaczają pociągi drugiej linii metra.

Odkryj dzielnicę ultranowoczesnych drapaczy chmur, której rytm wyznaczają pociągi drugiej linii metra.

Unique Tower Grzybowska

Development
Development

Unique Tower Grzybowska to nowoczesna inwestycja mieszkaniowa zlokalizowana w sercu warszawskiej Woli – jednej z najszybciej rozwijających się dzielnic stolicy. W 16-piętrowym budynku znajdują się komfortowe mieszkania jedno, dwu i trzypokojowe, wszystkie klimatyzowane i w pełni umeblowane. Część lokali posiada przestronne balkony z widokiem na panoramę miasta. Przestrzenie wspólne...

Może Cię również zainteresować:

Zaakceptuj ciasteczka

Dziękujemy za odwiedzenie naszej strony. Państwa prywatność ma dla nas ogromne znaczenie, a bezpieczeństwo danych to priorytet. Korzystamy z plików cookies, które pomagają nam dostosować treść do indywidualnych preferencji oraz dostarczać jeszcze wyższą jakość usług. Prosimy o wyrażenie zgody na korzystanie z plików cookies i zapoznanie się z polityką prywatności.